首頁 > 房屋出售 > 誠昱/崇善商圈孝親裝潢車庫透天
第一房屋仲介 - 誠昱/崇善商圈孝親裝潢車庫透天

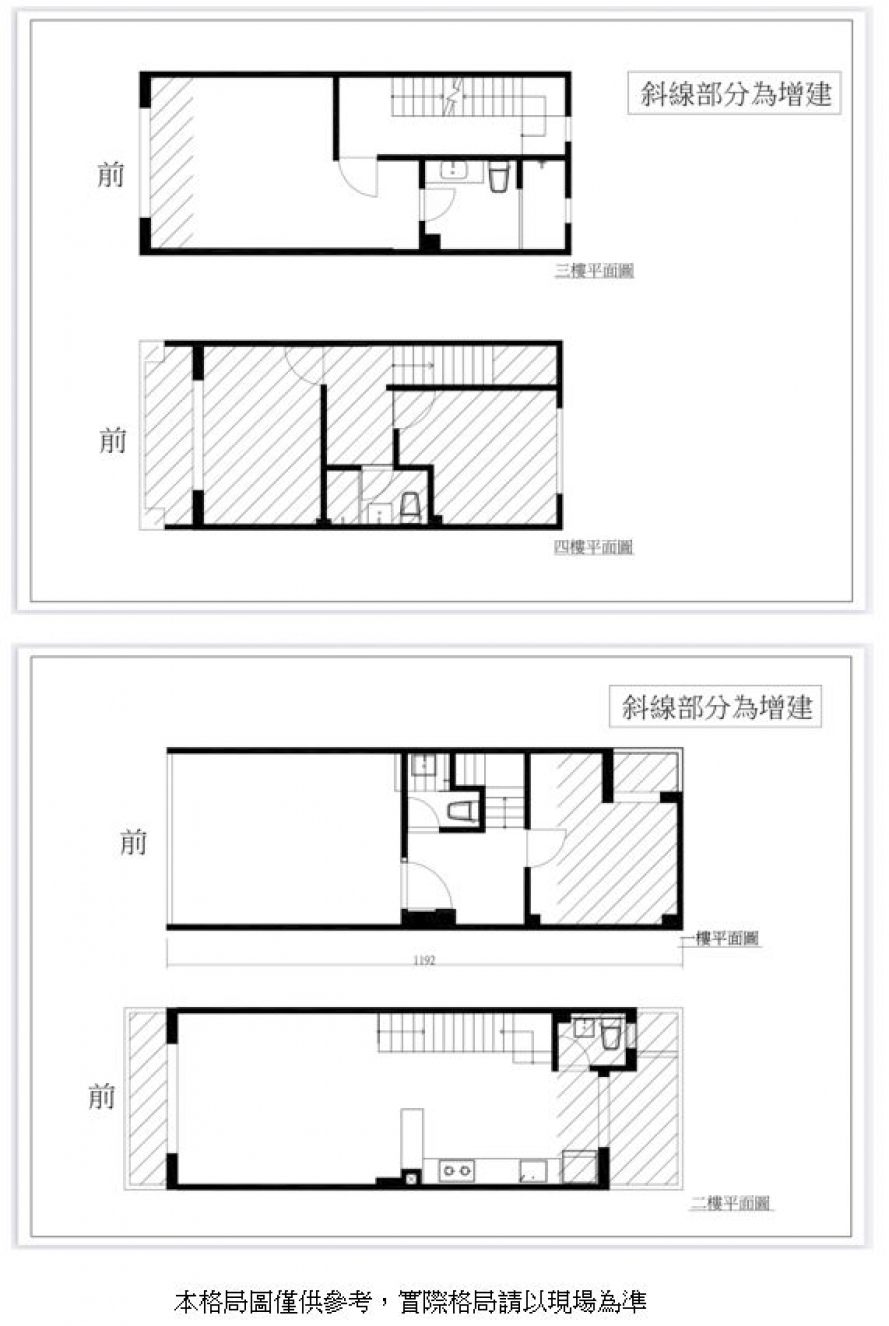
誠昱/崇善商圈孝親裝潢車庫透天

透天/別墅      1980萬

系統編號

物件區域
701台南市東區

物件地址
崇善十一街

地坪
17.84 坪

總建坪
33.39 坪

室內坪數
33.39 坪

主建物坪
33.39 坪

總樓層
3 樓

位於樓層
1~3 樓

格局
4房2廳4衛4陽台

採光面數
2 面採光

建物結構
鋼骨鋼筋混凝土(SRC)

建築完工
1979年 屋齡約47年

臨路寬度
約8 米路

鄰近市場
仁和市場

公園綠地
社區公園

特色說明
1.整棟重新整理+增建,實際使用
2.空間大幅提升,格局方正,動線佳
3.一樓孝親房+有天井+二樓延伸露台
4.屋內保有自然光,乾爽不潮溼
5.仁和商圈,生活機能完整,採買便利
6.崇善商圈近學區,外食方便,診所林立,生活便利滿分

※以上資訊如有記載錯誤,一律依謄本登記簿為準

 - 誠昱/崇善商圈孝親裝潢車庫透天
 - 誠昱/崇善商圈孝親裝潢車庫透天
 - 誠昱/崇善商圈孝親裝潢車庫透天
 - 誠昱/崇善商圈孝親裝潢車庫透天
 - 誠昱/崇善商圈孝親裝潢車庫透天
 - 誠昱/崇善商圈孝親裝潢車庫透天
 - 誠昱/崇善商圈孝親裝潢車庫透天
 - 誠昱/崇善商圈孝親裝潢車庫透天
 - 誠昱/崇善商圈孝親裝潢車庫透天
 - 誠昱/崇善商圈孝親裝潢車庫透天
 - 誠昱/崇善商圈孝親裝潢車庫透天
 - 誠昱/崇善商圈孝親裝潢車庫透天
 - 誠昱/崇善商圈孝親裝潢車庫透天
 - 誠昱/崇善商圈孝親裝潢車庫透天
推薦物件...

誠昱/高岡屋亮麗美三房

誠昱/高岡屋亮麗美三房
628 萬

誠昱/新營茄苳低總價優質.

誠昱/新營茄苳低總價優質.
355 萬

誠昱/佳里龍安段農地地上.

誠昱/佳里龍安段農地地上.
688 萬

誠昱/國三六甲裕農都内農.

誠昱/國三六甲裕農都内農.
888 萬

誠昱/崑科大乙種工業用地

誠昱/崑科大乙種工業用地
998 萬

誠昱/安平河景整新全配2.

誠昱/安平河景整新全配2.
489 萬

誠昱/新化近關新路方正農.

誠昱/新化近關新路方正農.
1300 萬

誠昱/復國白金質感3房大.

誠昱/復國白金質感3房大.
933 萬


更多..
地圖
分享到臉書